

梁上構架構造

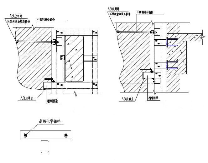
立柱與主體結構連接詳圖

橫梁與立柱連接詳圖

吊裝埋件

上部石材http://www.stonebuy.com/的就位錨栓

汽車吊石材http://www.stonebuy.com/吊裝

石材http://www.stonebuy.com/吊至立面相應位置

手動葫蘆進行調整


上部石材http://www.stonebuy.com/就位、固定圖

石材http://www.stonebuy.com/螺栓孔修補效果圖
黃金麻石材, 芝麻白石材, 芝麻灰石材, 櫻花紅石材, 晶白玉石材
大門紅防腐石材,海島紅,防腐花崗巖
黑金沙、 印度紅、 英國棕、黑紅棕、 銀珠 ,古典棕、加州金麻、