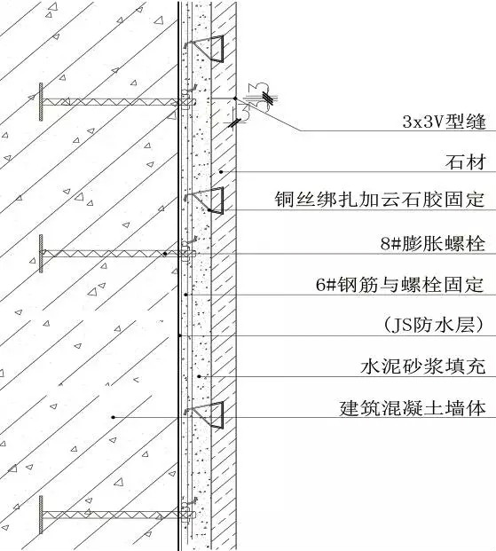
石材http://www.stonebuy.com/與混凝土墻相接三維示意圖:


工藝說明:
1.墻面做JS防水層;
2.選用石材http://www.stonebuy.com/18mm,均經(jīng)過六面防護、晶面處理;
3.塑造石材http://www.stonebuy.com/造型,上下口做3mm倒角;
4.石材http://www.stonebuy.com/安裝前進行打眼,方便銅絲固定(上下共4個眼);
5.鋼筋與石材http://www.stonebuy.com/固定;
6.土建墻體固定膨脹螺栓;
7.鋼筋于螺栓固定,鋼筋成網(wǎng)狀;
8.銅絲栓綁與鋼筋網(wǎng);
9.石材http://www.stonebuy.com/與墻體之間填充水泥砂漿,即灌漿。

河南芝麻灰,梨花白,梨花紅,珍珠灰,染黑板,染紅板,中華綠,芝麻白,
岑溪紅、三堡紅、粉紅麻、海浪花、海棠紅
灰姑娘、廣西灰姑娘、灰洞石、黑白根、青石板、圍墳石,墓碑、路