材料分析:
3.完成面處理,用專用填縫劑擦縫、保潔,專用保護膜做成品保護
詳細工序:
材料分析:
1.方管制作隔墻,封水泥壓力板、對要處理的基層加固處理
4.完成面處理,用專用填縫劑擦縫、保潔,專用保護膜做成品保護
施工工序:
材料分析:
2.不銹鋼基層制作木龍骨、防火板,不銹鋼安裝
4.完成面處理,用專用填縫劑擦縫、保潔,專用保護膜做成品保護
施工工序
三、墻磚與不銹鋼相接工藝做法
墻磚與不銹鋼相接工藝做法(一)

墻磚與不銹鋼相接工藝做法(二)
注意點:
不銹鋼,易于變形安裝時不可用硬物直接打在不銹鋼面上,需增大其受力面積,以此保證,不銹鋼面無變形完整
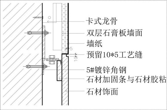
材料分析:
1.鍍鋅槽鋼、鍍鋅角鐵及配件,選用指定墻磚干掛,木龍骨、防火夾板
2.加工不銹鋼、注意不銹鋼與墻磚收口,墻磚用專用膠固定
3.完成面處理,用專用填縫劑擦縫、保潔,專用保護膜做成品保護
施工工序
準備工作--現場放線--材料加工--基層處理--墻磚結構框架固定--木龍骨基礎、防火板基層--不銹鋼定制--干掛墻磚--安裝不銹鋼--完成面處理
注意點:基礎厚度處理,易碎品安裝需專業人士指導,注意定制尺寸規格(現場不宜在次加工)
材料分析:
3.完成面處理,用專用填縫劑擦縫、保潔,專用保護膜做成品保護
施工工序
材料分析:
3.完成面處理,用專用填縫劑擦縫、保潔,專用保護膜做成品保護
施工工序
材料分析:
3.完成面處理,用專用填縫劑擦縫、保潔,專用保護膜做成品保護
施工工序
注意點:分清貼法工藝,對不同材質加以區分,收口完整
材料分析:
3.完成面處理,用專用填縫劑灌縫、擦縫、保潔,專用保護膜做成品保護
施工工序:
注意點:
1.墻紙施工要做好基層處理,注意墻紙拼縫順序及圖案完整,墻紙與墻磚建議做壓條處理,墻磚易于水墻紙需做防潮、防水處理
材料分析:
3.完成面處理,用專用填縫劑擦縫、保潔,專用保護膜做成品保護
施工工序:
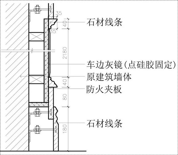
材料分析:
1.選用指定墻磚、鋪貼,防火辦基層、木飾面,墻磚用普通硅酸鹽水泥或膠泥鋪貼
3.完成面處理,用專用填縫劑灌縫、擦縫、保潔,專用保護膜做成品保護
施工工序:
準備工作--現場放線--材料加工--基層處理--木飾面基層制作--水泥砂漿結合層--墻磚鋪貼--安裝木飾面--灌封、擦縫--完成面處理